Découvrir le bien

Asnières-sur-Seine (92600) Appartement 47m2 avec terrasse de 25m2, Avenue d'Argenteuil

Réf : MHVAP30000114 340 000 €

Bossé & Mona Immobilier, vous propose à la vente cet appartement de 47m2 avec une terrasse de 25m2, situé Avenue d'Argenteuil, dans un immeuble de 1993, à 10 minutes de la gare d'Asnières et du métro Gabriel Peri.

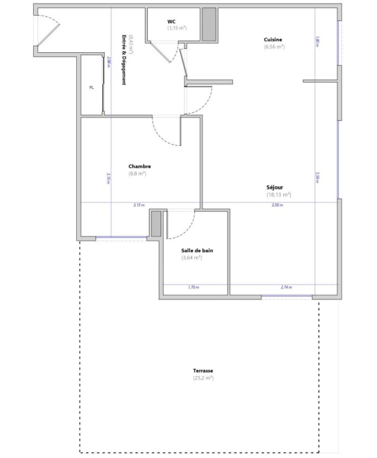
Le bien, entièrement sur jardin, calme et lumineux, au 1er étage avec ascenseur, se compose d'une entrée, d'une cuisine ouverte sur le séjour, le tout pour une superficie de 25m2, d'une chambre de 9m2, d'une salle de bain et d'un WC indépendant.

Une terrasse de 25m2 est accessible depuis la chambre et le séjour.

L'appartement dispose de rangements et de fenêtres en double vitrage.

Les charges de 100 euros par mois, incluent notamment l'eau froide, l'ascenseur et l'entretien des parties communes et du jardin privé de la copropriété.

Le chauffage et l'eau chaude sont individuels au gaz.

Une cave est incluse dans la vente.

Nous sommes à votre disposition si vous souhaitez vendre ou faire estimer un bien immobilier à Paris ou dans l'Ouest parisien.

TRAD_SIROCCO_Caracteristique Valeurs
Code postal 92600
Surface habitable (m²) 47 m²
Surface loi Carrez (m²) 47 m²
Nombre de chambre(s) 1
Nombre de pièces 2
Etage 1
Ascenseur OUI
TRAD_SIROCCO_Caracteristique Valeurs
Nb de salle de bains 1
Terrasse OUI
Cave OUI
Année de construction 1993
TRAD_SIROCCO_Caracteristique Valeurs
Prix de vente honoraires TTC inclus 340 000 €
DPE GES
DPE ANCIENNE VERSION
  • Commerces et santé
  • Loisirs
  • Ecoles
  • Transports
  • Pratique

Nos outils

Imprimer
Ces biens peuvent aussi vous intéresser
Vendu
Boulogne-Billancourt (92100)

F2 de 41m2, refait par architecte, situé à 400m du métro Marcel...

Vendu
Boulogne-Billancourt (92100)

2 pièces de 42m2 en parfait état situé à 500m du métro Boulogne -...

Nous suivre sur