Découvrir le bien

Boulogne-Billancourt (92100) F2 de 41m2, refait par architecte, situé à 400m du métro Marcel Sembat

Réf : BFVAP20000180 385 000 €

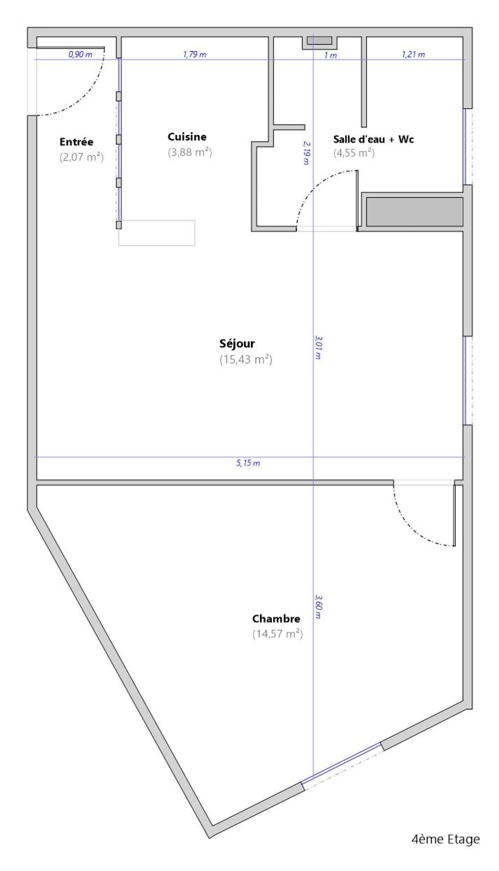
Bossé & Mona Immobilier, vous propose à la vente cet appartement de 41m2, en parfait état, refait par architecte, clair et calme, situé à 400m de la place Marcel Sembat.

Le bien, au 4ème étage avec ascenseur d'un immeuble ancien, se compose d'une entrée avec rangements, d'un séjour de 18m2 exposé plein Sud avec cuisine ouverte entièrement équipée et aménagée, d'une chambre de 14m2 avec rangements exposée plein Ouest et d'une salle d'eau avec WC.

L'appartement dispose de fenêtres en double vitrage, de parquet et de nombreux rangements.

Une cave est incluse dans la vente.

Les charges, de 120 euros par mois, incluent notamment l'eau froide, l'ascenseur et l'entretien des parties communes.

Le chauffage est individuel au gaz.

Nous sommes à votre disposition si vous souhaitez vendre ou faire estimer votre bien à Paris ou dans l'Ouest parisien.

TRAD_SIROCCO_Caracteristique Valeurs
Code postal 92100
Surface habitable (m²) 41 m²
Surface loi Carrez (m²) 41 m²
Nombre de chambre(s) 1
Nombre de pièces 2
Etage 4
Ascenseur OUI
TRAD_SIROCCO_Caracteristique Valeurs
Nb de salle d'eau 1
Cuisine Américaine
Type de cuisine Equipée
Mode de chauffage Gaz
Type de chauffage Radiateur
Format de chauffage Individuel
Cave OUI
Exposition Sud
Année de construction 1930
TRAD_SIROCCO_Caracteristique Valeurs
Copropriété OUI
Lot n° 17
TRAD_SIROCCO_Caracteristique Valeurs
Prix de vente honoraires TTC inclus 385 000 €
Prix de vente honoraires TTC exclus 376 000 €
Honoraires TTC à la charge acquéreur 2,39 %
Charges 121 €
DPE GES
DPE en cours
  • Commerces et santé
  • Loisirs
  • Ecoles
  • Transports
  • Pratique

Nos outils

Imprimer
Ces biens peuvent aussi vous intéresser
Vendu
Boulogne-Billancourt (92100)

Appartement de 39m2 en parfait état avec terrasse de 10m2

Vendu
Boulogne-Billancourt (92100)

2 pièces de 42m2 en parfait état situé à 500m du métro Boulogne -...

Nous suivre sur