Découvrir le bien

Paris (75016) 6 pièces de 139m2 quartier Passy

Réf : BFVAP20001525 1 780 000 €

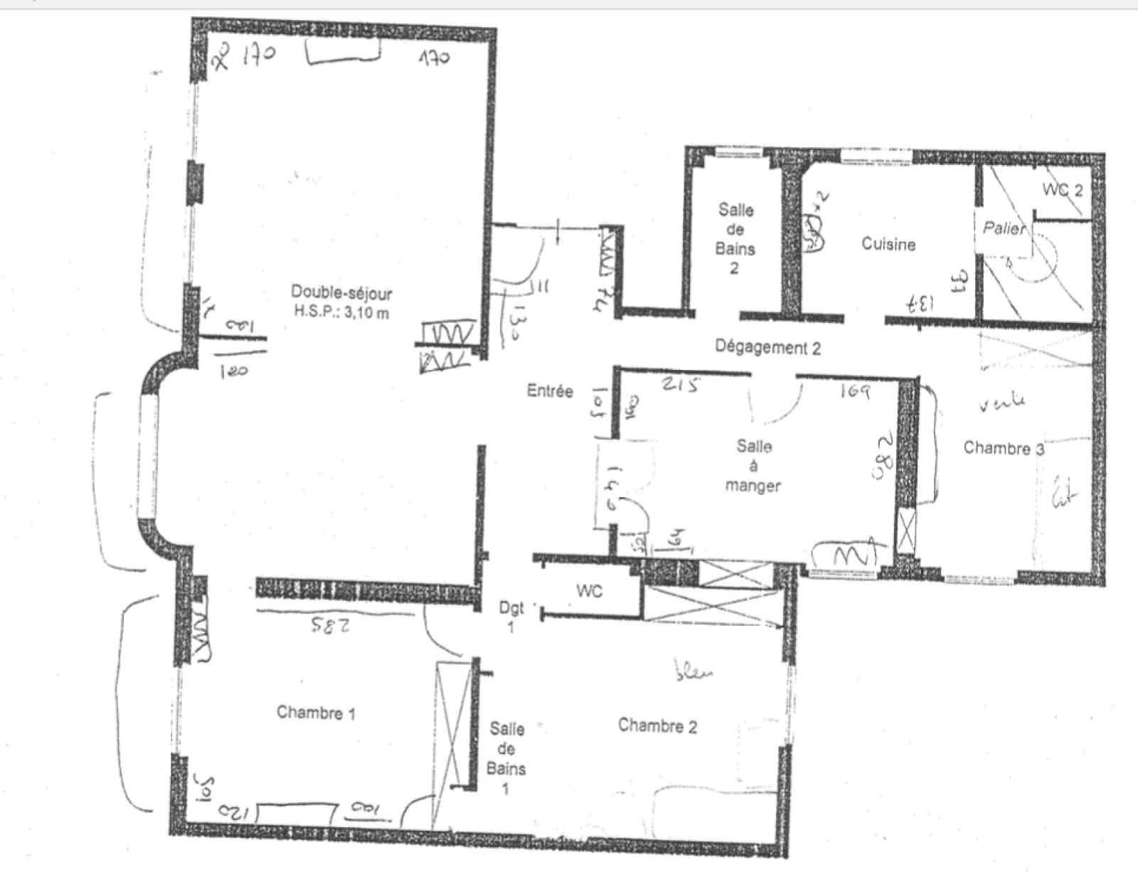
Exclusivité - Quartier Passy - Bossé & Mona Immobilier, vous propose à la vente ce bel appartement de 139m2 habitables, 138m2 Carrez, situé dans une rue calme, à 300m des métros Passy et Muette.

Le bien, calme et traversant, est situé au 2ème étage avec ascenseur d'un bel immeuble ancien. Unique appartement sur le palier, il se compose d'une entrée de 12m2, d'un double séjour de 45m2 exposé Nord-Est (3.10m de hauteur sous plafond) donnant accès à un balcon (il est possible de faire une cuisine ouverte dans le double séjour), de 4 chambres de 18m2, 15m2, 14m2 et 11m2 (3 chambres sur cour et 1 sur rue), d'une salle de bains de 5m2, d'une salle d'eau avec WC, d'une cuisine indépendante de 7m2, d'un débarras et d'un WC indépendant.

Il est possible d'acheter un studio de 15m2 carrez au 6eme étage de l'immeuble et également un BOX dans la rue en plus du prix.

Le bien est situé à proximité de plusieurs écoles et lycées : St Jean de Passy, St louis de Gonzague, la Tour et Gerson.

L'appartement dispose de parquet, de moulures et de plusieurs cheminées, d'une hauteur sous plafond de 3.10m et de nombreux rangements.

Les charges, de 700 euros / mois comprennent l'eau froide et chaude, les services d'un gardien, le chauffage et l'ascenseur.

Nous sommes à votre disposition si vous souhaitez vendre ou faire estimer un bien immobilier à Paris ou dans l'Ouest parisien.

TRAD_SIROCCO_Caracteristique Valeurs
Code postal 75016
Surface habitable (m²) 139 m²
Surface loi Carrez (m²) 138 m²
Nombre de chambre(s) 4
Nombre de pièces 6
Etage 2
Ascenseur OUI
TRAD_SIROCCO_Caracteristique Valeurs
Nb de salle de bains 1
Nb de salle d'eau 1
Cuisine Séparée
Type de cuisine Equipée
Mode de chauffage Gaz
Type de chauffage Radiateur
Format de chauffage Collectif
Balcon OUI
Cave OUI
Surface cave (m²) 15
Exposition Nord-Est
Année de construction 1902
TRAD_SIROCCO_Caracteristique Valeurs
Copropriété OUI
TRAD_SIROCCO_Caracteristique Valeurs
Prix de vente honoraires TTC inclus 1 780 000 €
Prix de vente honoraires TTC exclus 1 750 000 €
Honoraires TTC à la charge acquéreur 1,71 %
Charges 700 €
Taxe foncière annuelle 2 900 €
DPE GES
DPE en cours
  • Commerces et santé
  • Loisirs
  • Ecoles
  • Transports
  • Pratique

Nos outils

Imprimer
Ces biens peuvent aussi vous intéresser
Vendu
Neuilly-sur-Seine (92200)

Penthouse de 89m2 avec rooftop de 69m2, quartier Saint-James

Nous suivre sur