Découvrir le bien

Neuilly-sur-Seine (92200) Penthouse de 89m2 avec rooftop de 69m2, quartier Saint-James

Réf : BFVAP20001564 1 345 000 €

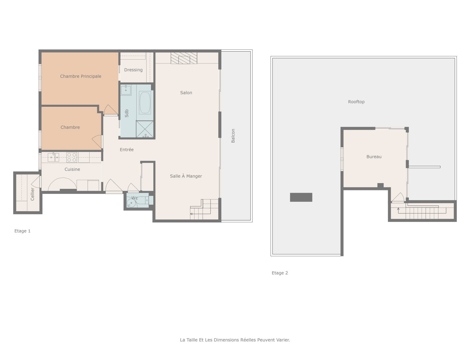
Bossé & Mona Immobilier vous propose à la vente ce penthouse de 89m2 habitables (86m2 Carrez) avec un balcon de 13m2 et un rooftop de 69m2, en face du Bois de Boulogne, dans le quartier Saint-James.

Le bien, calme, traversant et lumineux (exposé Sud/Nord), en parfait état, est situé au 3ème et dernier étage avec ascenseur d'un immeuble de standing. Il se compose d'une entrée, d'un séjour / salle à manger de 29m2 donnant accès à une terrasse de 13m2 exposée plein Sud, d'une cuisine indépendante entièrement équipée et aménagée de 9m2, d'un débarras, de 2 chambres de 8m2 et 12m2, d'un dressing, d'une salle de bains (douche et baignoire) et d'un wc indépendant.

A l'étage se trouve un bureau de 11m2 qui donne accès à une magnifique terrasse de 69m2.

L'appartement dispose de parquet, de fenêtres en double vitrage et d'une climatisation.

Une cave et une place de parking sont vendues avec le bien.

Les charges, de 560 euros / mois comprennent l'eau froide et chaude, les services d'un gardien, le chauffage et l'ascenseur.

Nous sommes à votre disposition si vous souhaitez vendre ou faire estimer un bien immobilier à Paris ou dans l'Ouest parisien.

TRAD_SIROCCO_Caracteristique Valeurs
Code postal 92200
Surface habitable (m²) 89 m²
Surface loi Carrez (m²) 86 m²
Nombre de chambre(s) 2
Nombre de pièces 4
Etage 3
Ascenseur OUI
TRAD_SIROCCO_Caracteristique Valeurs
Nb de salle de bains 1
Nb de salle d'eau 1
Cuisine Séparée
Type de cuisine Equipée
Mode de chauffage Gaz
Type de chauffage Radiateur
Format de chauffage Collectif
Balcon OUI
Terrasse OUI
Cave OUI
Exposition Sud-Ouest
Année de construction 1980
TRAD_SIROCCO_Caracteristique Valeurs
Copropriété OUI
nombre de lots 100
TRAD_SIROCCO_Caracteristique Valeurs
Prix de vente honoraires TTC inclus 1 345 000 €
Prix de vente honoraires TTC exclus 1 320 000 €
Honoraires TTC à la charge acquéreur 1,89 %
Charges 560 €
DPE GES
DPE en cours
  • Commerces et santé
  • Loisirs
  • Ecoles
  • Transports
  • Pratique

Nos outils

Imprimer
Ces biens peuvent aussi vous intéresser
Vendu
Paris (75017)

F3 de 79m2, refait par architecte, calme et lumineux, situé à 200m...

Vendu
Paris (75017)

Appartement 91m2, clair et calme, situé proche de la place des Ternes

Nous suivre sur