Découvrir le bien

Vincennes (94300) Appartement 44m2, à 300m du métro Bérault, avenue Franklin Roosevelt

Réf : MHVAP30000292 449 000 €

Bossé & Mona Immobilier, vous propose à la vente cet appartement de 44m2, dans un immeuble ancien, Avenue Franklin Roosevelt, à 150m du château de Vincennes et 300m du métro Bérault.

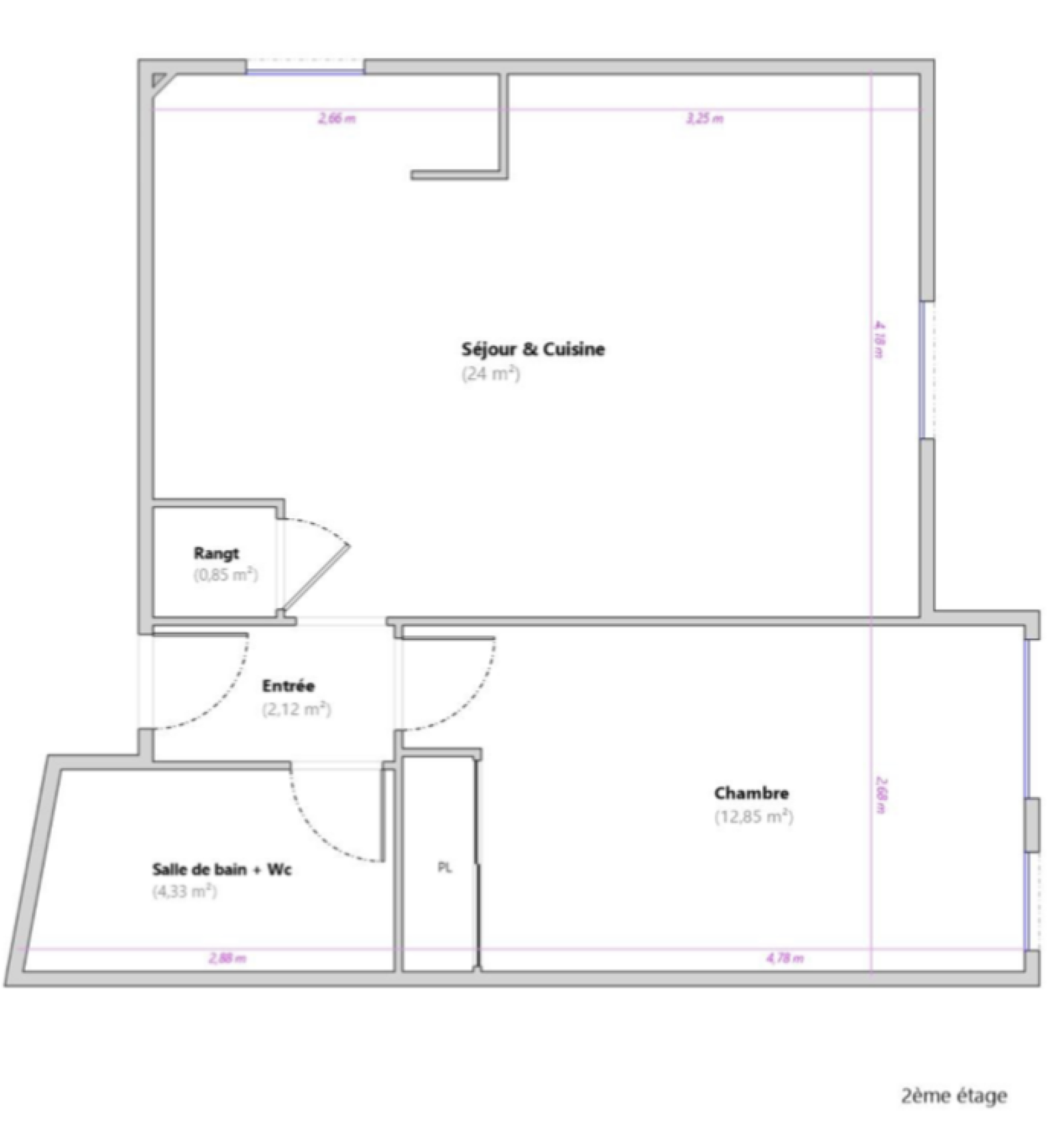
Le bien, au 2ème étage sans ascenseur, calme, entièrement sur cour, se compose d'une cuisine ouverte sur le séjour de 24m2, d'une chambre de 13m2 et d'une salle de bain avec WC.

L'appartement bénéficie de parquet, de fenêtres en double vitrage, d'une hauteur sous plafond de 2.83m et de la jouissance excluisve d'un débarras sur le palier.

Le chauffage est collectif au gaz, et l'eau chaude individuelle éléctrique.

Les charges, de 170 euros par mois, incluent l'eau froide et l'entretien des parties communes.

Nous sommes à votre disposition si vous souhaitez vendre ou faire estimer votre bien à Paris ou dans l'Ouest parisien.

TRAD_SIROCCO_Caracteristique Valeurs
Code postal 94300
Surface habitable (m²) 44 m²
Surface loi Carrez (m²) 44 m²
Nombre de chambre(s) 1
Nombre de pièces 2
Etage 2
Ascenseur NON
TRAD_SIROCCO_Caracteristique Valeurs
Nb de salle de bains 1
Cuisine Américaine
Mode de chauffage Gaz
Type de chauffage Autre
Format de chauffage Collectif
Exposition Sud
Année de construction 1930
TRAD_SIROCCO_Caracteristique Valeurs
Copropriété OUI
TRAD_SIROCCO_Caracteristique Valeurs
Prix de vente honoraires TTC inclus 449 000 €
Prix de vente honoraires TTC exclus 440 000 €
Honoraires TTC à la charge acquéreur 2,05 %
DPE GES
DPE ANCIENNE VERSION
  • Commerces et santé
  • Loisirs
  • Ecoles
  • Transports
  • Pratique

Nos outils

Imprimer
Ces biens peuvent aussi vous intéresser
Vendu
Paris (75018)

F3 48m2, rue du Mont-Cenis, à 250m du métro Jules Joffrin

Vendu
Paris (75005)

F2 de 45m2 au calme situé à 50m du métro Jussieu

Nous suivre sur