Découvrir le bien

Courbevoie (92400) F4 74m2, parquet, moulures, cheminées, dans un immeuble ancien, rue du 22 Septembre

Réf : MHVAP30000239 559 000 €

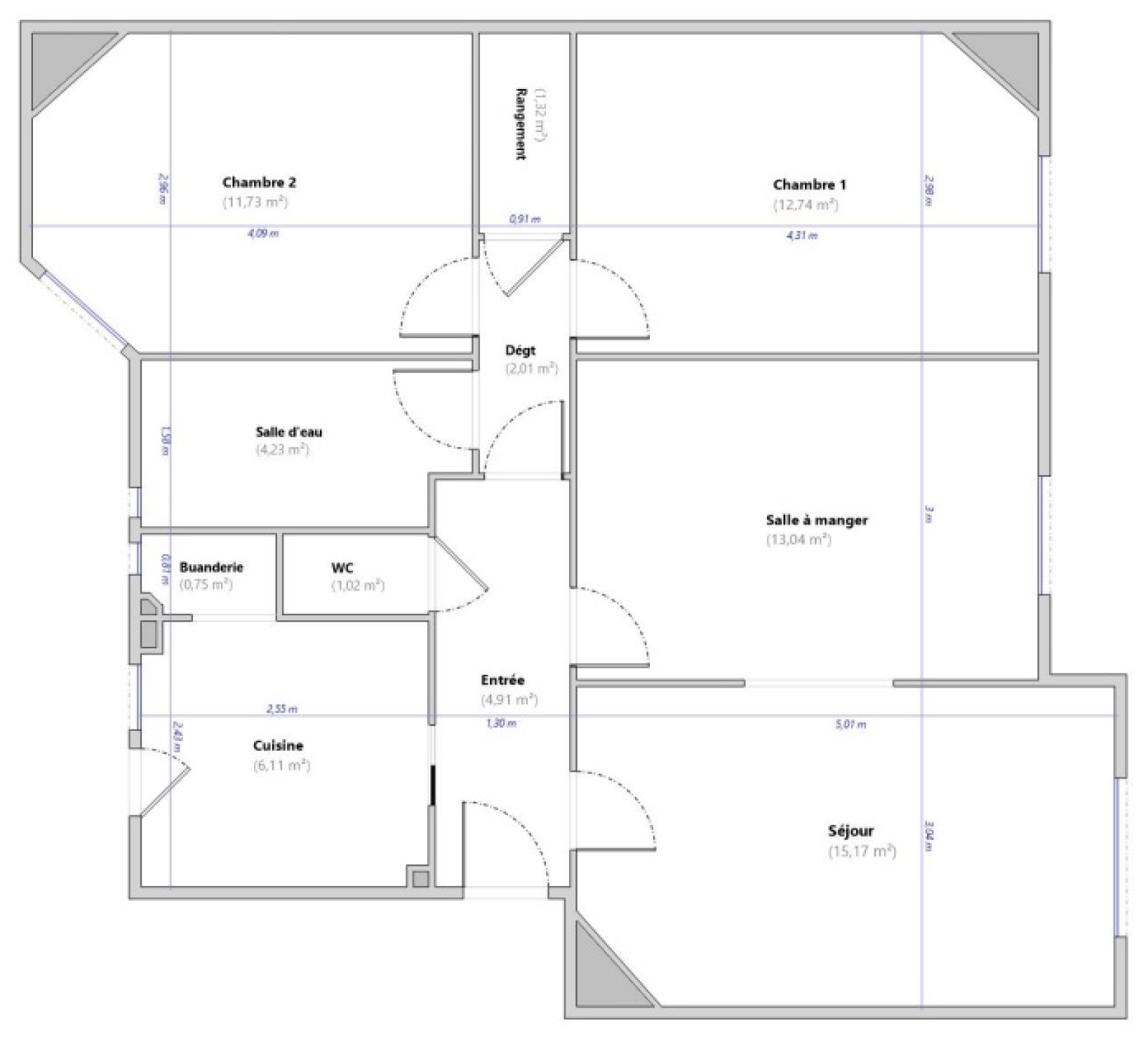
Bossé & Mona Immobilier, vous propose à la vente cet appartement de 74m2 (73m2 Carrez), dans un immeuble de 1925, rue du 22 Septembre, à 250m de la station Bécon-les-Bruyères.

Le bien, en très bon état général, sans vis à vis, au 1er étage surélevé avec ascenseur, se compose d'une entrée, d'un double séjour de 28m2, d'une cuisine indépendante, de deux chambres de 12m2 et 13m2, d'une salle d'eau, d'un WC indépendant et d'un dressing.

L'appartement dispose de parquet, de moulures, de cheminées dans les chambres, d'une hauteur sous plafond de 2.80m et de fenêtres en double vitrage.

Les charges, de 210 euros par mois, incluent le chauffage, l'eau froide, l'entretien des parties commues et l'ascenseur.

L'eau chaude est individuelle éléctrique.

Une cave est incluse dans la vente.

Nous sommes à votre disposition si vous souhaitez vendre ou faire estimer un bien immobilier à Paris ou dans l'Ouest parisien.

TRAD_SIROCCO_Caracteristique Valeurs
Code postal 92400
Surface habitable (m²) 74 m²
Surface loi Carrez (m²) 74 m²
Nombre de chambre(s) 2
Nombre de pièces 4
Etage 1
Ascenseur OUI
TRAD_SIROCCO_Caracteristique Valeurs
Nb de salle d'eau 1
Cuisine Séparée
Mode de chauffage Gaz
Type de chauffage Autre
Format de chauffage Collectif
Cave OUI
Année de construction 1925
TRAD_SIROCCO_Caracteristique Valeurs
Prix de vente honoraires TTC inclus 559 000 €
Prix de vente honoraires TTC exclus 550 000 €
Honoraires TTC à la charge acquéreur 1,64 %
DPE GES
DPE ANCIENNE VERSION
  • Commerces et santé
  • Loisirs
  • Ecoles
  • Transports
  • Pratique

Nos outils

Imprimer
Ces biens peuvent aussi vous intéresser
Vendu
Boulogne-Billancourt (92100)

Appartement de 81m2 en parfait état situé à 50m du métro Pont de...

Vendu
Levallois-Perret (92300)

3 pièces de 69m2 à 500m du métro Louise Michel

Nous suivre sur