Découvrir le bien

Boulogne-Billancourt (92100) 3 pièces de 50m2, en parfait état, situé à 100m de la place Marcel Sembat

Réf : BFVAP20000111 450 000 €

Bossé & Mona Immobilier, vous propose à la vente cet appartement de 50m2, en parfait état, clair et calme, situé à 100m de la place Marcel Sembat.

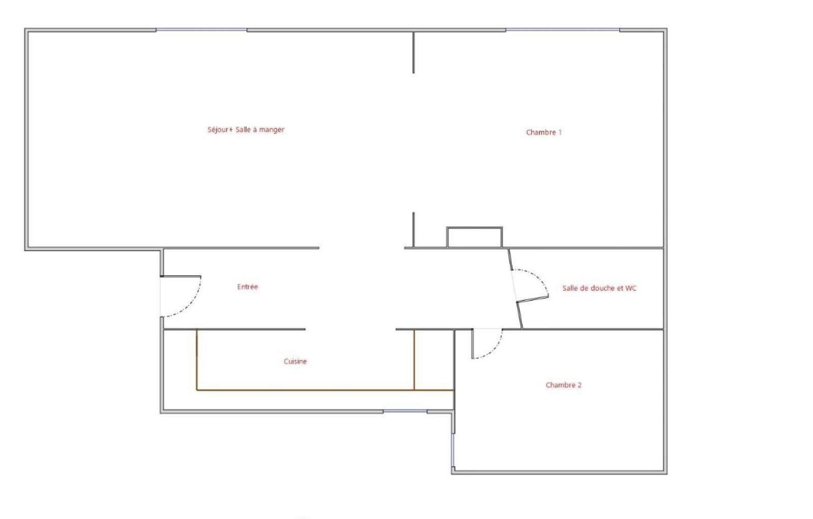
Le bien, au 4ème étage sans ascenseur d'un immeuble ancien, se compose d'une entrée avec rangements, d'un séjour exposé Est de 16m2, d'une cuisine indépendante entièrement équipée et aménagée de 6m2, de 2 chambres de 9m2 et 11m2 et d'une salle d'eau avec WC.

L'appartement dispose de fenêtres en double vitrage, de parquet et de nombreux rangements.

Une cave est incluse dans la vente.

Les charges, de 130 euros par mois, incluent notamment l'eau froide, le chauffage et l'entretien des parties communes.

Nous sommes à votre disposition si vous souhaitez vendre ou faire estimer votre bien à Paris ou dans l'Ouest parisien.

TRAD_SIROCCO_Caracteristique Valeurs
Code postal 92100
Surface habitable (m²) 50 m²
Surface loi Carrez (m²) 50 m²
Nombre de chambre(s) 2
Nombre de pièces 3
Etage 4
Ascenseur NON
TRAD_SIROCCO_Caracteristique Valeurs
Nb de salle d'eau 1
Cuisine Américaine
Type de cuisine Equipée
Mode de chauffage Gaz
Type de chauffage Radiateur
Format de chauffage Collectif
Cave OUI
Exposition Est
Année de construction 1930
TRAD_SIROCCO_Caracteristique Valeurs
Copropriété OUI
TRAD_SIROCCO_Caracteristique Valeurs
Prix de vente honoraires TTC inclus 450 000 €
Prix de vente honoraires TTC exclus 440 000 €
Honoraires TTC à la charge acquéreur 2,27 %
DPE GES
DPE ANCIENNE VERSION
  • Commerces et santé
  • Loisirs
  • Ecoles
  • Transports
  • Pratique

Nos outils

Imprimer
Ces biens peuvent aussi vous intéresser
Vendu
Boulogne-Billancourt (92100)

Appartement de 52m2 avec terrasse de 10m2, dans un immeuble de...

Vendu
Boulogne-Billancourt (92100)

3 pièces de 52m2 en parfait état avec terrasse de 15m2

Nous suivre sur