Découvrir le bien

Versailles (78000) Maison de 214m2, calme et lumineuse, avec jardin de 500m2 dans le Quartier Clagny-Glatigny

Réf : BFVMA20001130 1 090 000 €

Exclusivité - Quartier Clagny-Glatigny - Bossé & Mona immobilier, vous propose à la vente cette maison de 214m2 au sol (160m2 habitables) sur une parcelle de 700m2, située au calme, dans un quartier résidentiel, à proximité immédiate des écoles de renom (St-Jean, Hoche).

La maison, à rénover (devis travaux réalisé), dispose d'un jardin de 500m2 exposé plein Sud et sans vis-à-vis. Elle se compose :

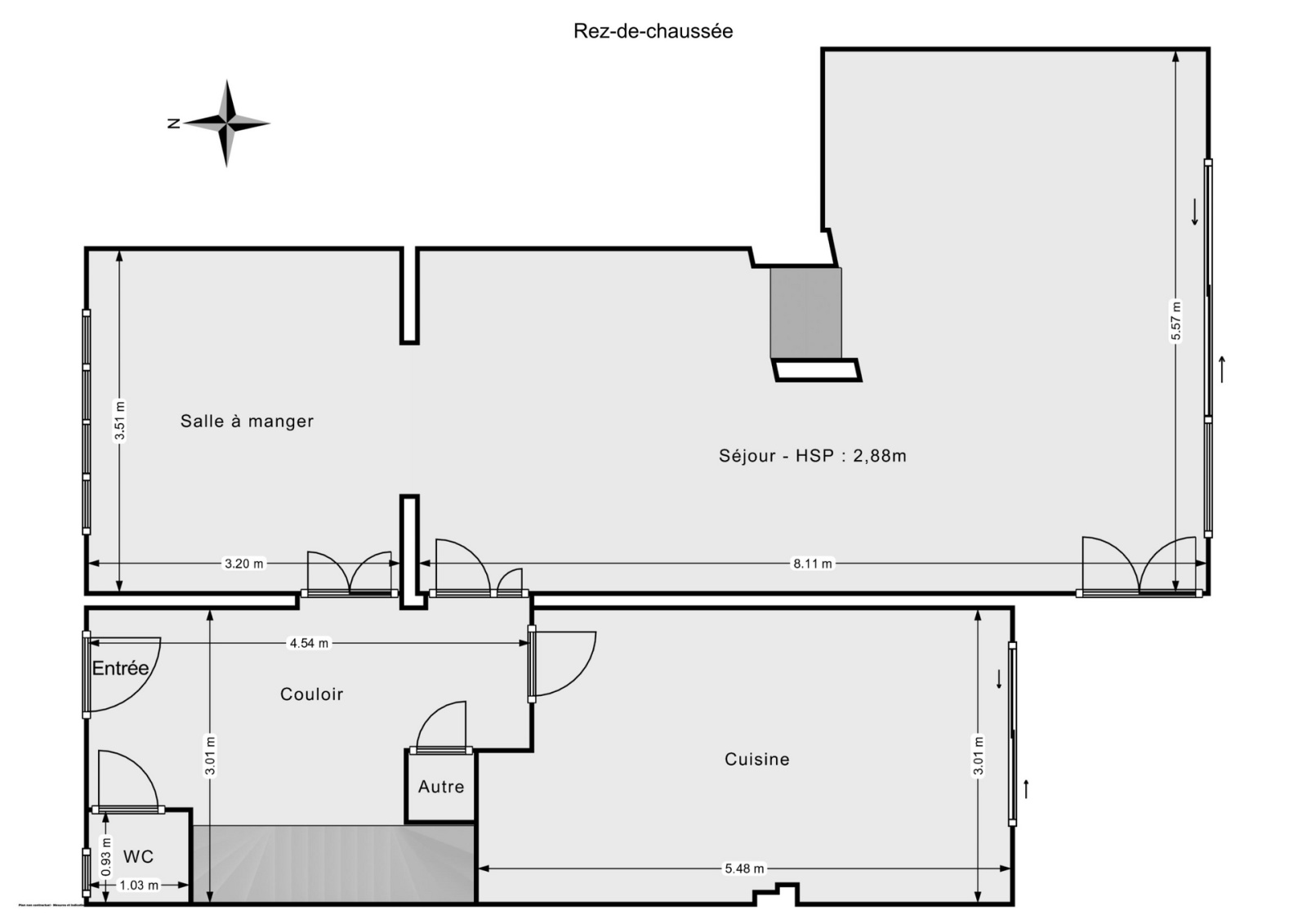
- Au rez-de-chausée: d'une entrée, d'un espace salon / salle à manger de 50m2, traversant, donnant accès à une terrasse et un jardin de 500m2, d'une cuisine indépendante de 15m2, et d'un WC indépendant.

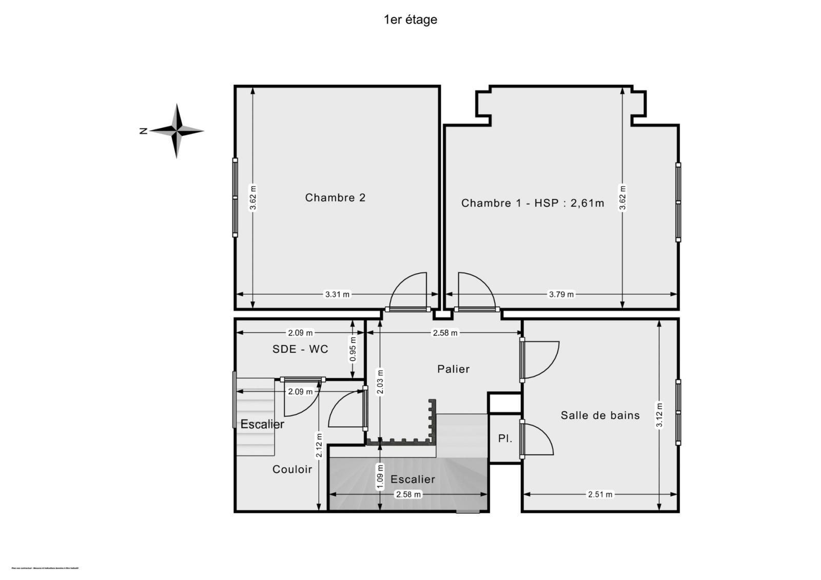
- A l'étage: de 2 chambres de 11.5m2 et 13.2m2, d'une salle de bains, et d'une salle d'eau avec WC. - Au dernier étage: de 2 chambres de 14.5m2 et 13.2m2.

La maison dispose d'un sous-sol de 70m2 qui comprend : un garage de 22.9m2, 2 caves, une buanderie de 10m2 et une pièce pouvant faire office de salle de jeu ou salle télé de 22m2. Il y a un abris de jardin devant la maison. Au fond du jardin, un studio indépendant de 11m2 avec point d'eau peut faire office de chambre d'appoint.

La maison, lumineuse, calme, traversante et non mitoyenne dispose de nombreux rangements et d'une cheminée. Elle est située à 10min en bus de la gare de Versailles Rive Droite. La taxe foncière est de 2496 euros et le chauffage est au gaz.

Nous sommes à votre disposition si vous souhaitez vendre ou faire estimer un bien immobilier à Paris ou dans l'ouest parisien.

TRAD_SIROCCO_Caracteristique Valeurs
Code postal 78000
Surface habitable (m²) 214 m²
surface terrain 692 m²
Surface loi Carrez (m²) 214 m²
Nombre de chambre(s) 4
Nombre de pièces 6
Nombre de niveaux 2
TRAD_SIROCCO_Caracteristique Valeurs
Nb de salle de bains 1
Nb de salle d'eau 2
Cuisine Séparée
Type de cuisine Equipée
Mode de chauffage Gaz
Type de chauffage TRAD_TYPE_CHAUFF_CHAUDIERE
Format de chauffage Individuel
Terrasse OUI
Nombre de garage 1
Exposition Sud
Année de construction 1950
TRAD_SIROCCO_Caracteristique Valeurs
Copropriété NON
plan de sauvegarde NON
TRAD_SIROCCO_Caracteristique Valeurs
Prix de vente honoraires TTC inclus 1 090 000 €
Prix de vente honoraires TTC exclus 1 070 000 €
Honoraires TTC à la charge acquéreur 1,87 %
Taxe foncière annuelle 2 496 €
DPE GES
DPE en cours
  • Commerces et santé
  • Loisirs
  • Ecoles
  • Transports
  • Pratique

Nos outils

Imprimer
Ces biens peuvent aussi vous intéresser
Vendu
Paris (75007)

Appartement 64m2 rue Oudinot, à 300m du métro Vaneau.

Vendu
Paris (75017)

F3 de 79m2, refait par architecte, calme et lumineux, situé à 200m...

Nous suivre sur