Découvrir le bien

Paris (75020) F2 de 40m2 clair et calme situé à 300m du métro Alexandre Dumas

Réf : BFVAP20000219 415 000 €

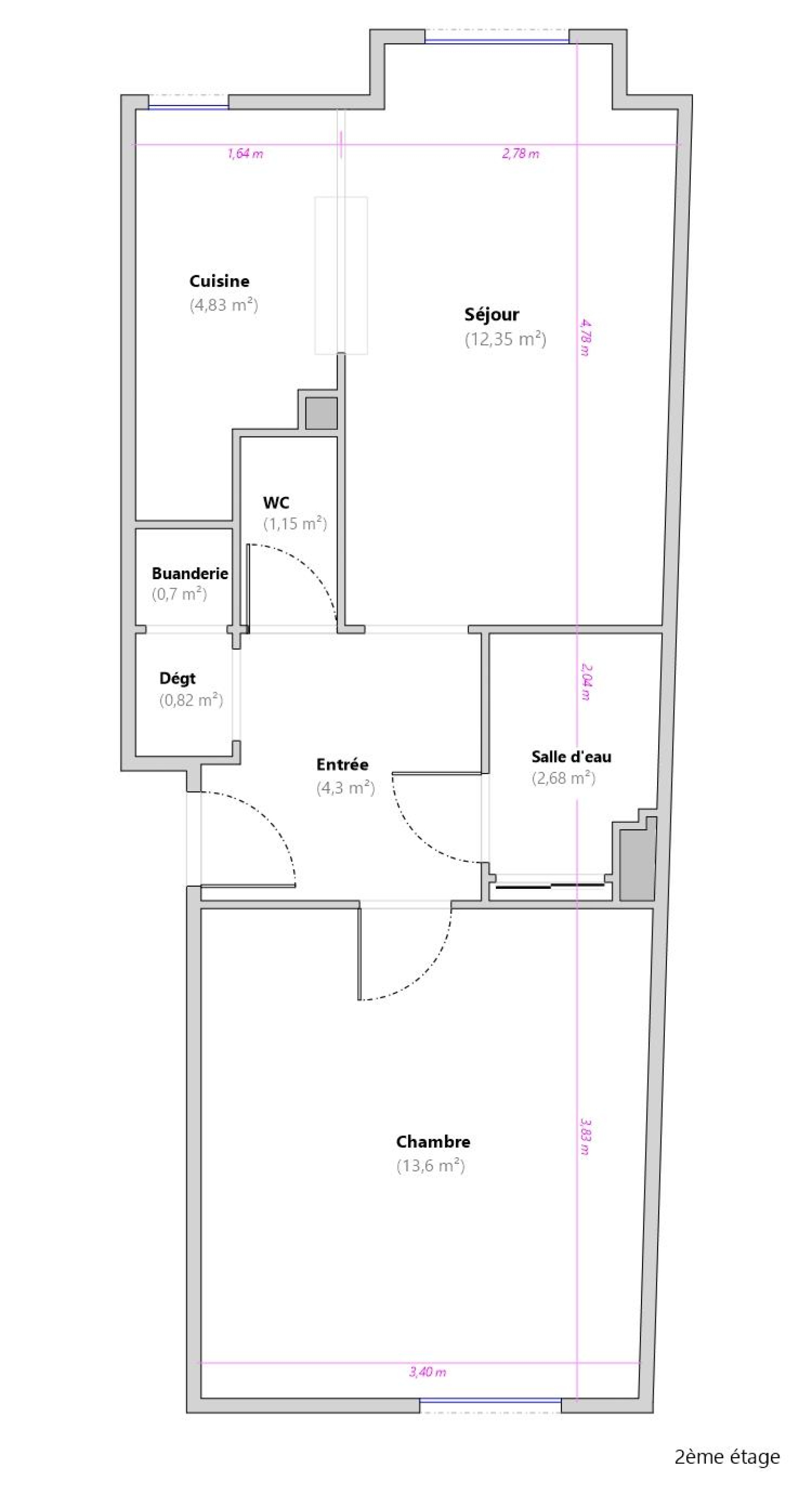
Bossé & Mona immobilier, vous propose à la vente ce bien de 40m2, situé dans un bel immeuble ancien, rue Fontarabie, à 300m du métro Alexandre Dumas et du cimetière du Père Lachaise.

L'appartement, traversant et lumineux, est au 2ème étage sans ascenseur. Il se compose d'une entrée, d'un séjour exposé plein Sud de 17m2 avec une cuisine ouverte, d'une chambre de 14m2 au calme sur cour, d'un dressing, d'une salle d'eau, d'un WC indépendant et d'une cave.

Le bien dispose de parquet et de fenêtres en double vitrage.

Les charges, de 194 euros par mois, incluent notamment l'eau froide, l'entretien des parties communes et le chauffage.

Nous sommes à votre disposition si vous souhaitez vendre ou faire estimer un bien immobilier à Paris ou dans l'Ouest parisien.

TRAD_SIROCCO_Caracteristique Valeurs
Code postal 75020
Surface habitable (m²) 40 m²
Surface loi Carrez (m²) 40 m²
Nombre de chambre(s) 1
Nombre de pièces 2
Etage 2
Ascenseur NON
TRAD_SIROCCO_Caracteristique Valeurs
Nb de salle de bains 1
Cuisine Américaine
Type de cuisine Equipée
Mode de chauffage Gaz
Type de chauffage Radiateur
Format de chauffage Collectif
Cave OUI
Exposition Sud
Année de construction 1930
TRAD_SIROCCO_Caracteristique Valeurs
Copropriété OUI
TRAD_SIROCCO_Caracteristique Valeurs
Prix de vente honoraires TTC inclus 415 000 €
Prix de vente honoraires TTC exclus 406 000 €
Honoraires TTC à la charge acquéreur 2,22 %
Charges 194 €
Taxe foncière annuelle 500 €
DPE GES
DPE ANCIENNE VERSION
  • Commerces et santé
  • Loisirs
  • Ecoles
  • Transports
  • Pratique

Nos outils

Imprimer
Ces biens peuvent aussi vous intéresser
Vendu
Paris (75018)

 2 pièces de 43m2 à 300m du métro Jules Joffrin

Vendu
Paris (75015)

2 pièces de 40m2, au calme, situé à 300m du métro Convention

Nous suivre sur