Découvrir le bien

Paris (75017) 3 pièces de 62m2 calme et lumineux situé à 200m du métro Wagram

Réf : BFVAP20001262 725 000 €

Exclusivité - Bossé & Mona immobilier, vous propose à la vente cet appartement de 62m2, calme et lumineux, dans un bel immeuble ancien, rue Cardinet, à 200m du métro Wagram.

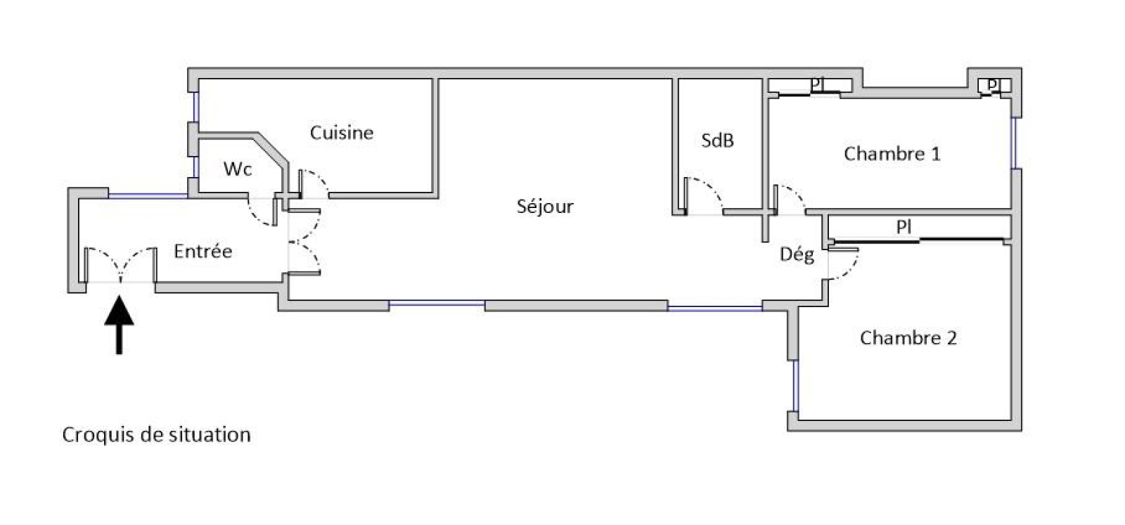
Le bien, au 5ème étage avec ascenseur, se compose d'une entrée, d'un séjour lumineux de 30m2 exposé plein Ouest avec une cuisine semi-ouverte (possibilité de l'ouvrir sur le séjour), de 2 chambres de 10m2 et 12m2, d'une salle de bains et d'un WC indépendant.

Le DPE passe en E en changeant les fenetres.

L'appartement bénéficie de parquet, de nombreux rangements et d'une cave.

Les charges, de 250€ par mois, incluent notamment l'eau, le chauffage, l’ascenseur et les services d’un gardien. La taxe fonciere est de 1530 euros en 2024.

Nous sommes à votre disposition si vous souhaitez vendre ou faire estimer votre bien à Paris ou dans l'ouest parisien.

TRAD_SIROCCO_Caracteristique Valeurs
Code postal 75017
Surface habitable (m²) 62 m²
Surface loi Carrez (m²) 62 m²
Nombre de chambre(s) 2
Nombre de pièces 3
Etage 5
Ascenseur OUI
TRAD_SIROCCO_Caracteristique Valeurs
Nb de salle de bains 1
Cuisine Américaine
Type de cuisine SEMI-EQUIPEE
Mode de chauffage Gaz
Type de chauffage Radiateur
Format de chauffage Collectif
Cave OUI
Exposition Ouest
Année de construction 1880
TRAD_SIROCCO_Caracteristique Valeurs
Copropriété OUI
TRAD_SIROCCO_Caracteristique Valeurs
Prix de vente honoraires TTC inclus 725 000 €
Prix de vente honoraires TTC exclus 705 000 €
Honoraires TTC à la charge acquéreur 2,84 %
Charges 250 €
Taxe foncière annuelle 1 530 €
DPE GES
DPE en cours
  • Commerces et santé
  • Loisirs
  • Ecoles
  • Transports
  • Pratique

Nos outils

Imprimer
Ces biens peuvent aussi vous intéresser
Vendu
Paris (75016)

Appartement 55m2, balcon 8m2, quartier La Muette, à 50m du RER...

Vendu
Paris (75012)

Appartement 65m2 avec balcon filant rue Crozatier

Nous suivre sur