Découvrir le bien

Paris (75016) Triplex de 81m2, refait par architecte, avec 2 terrasses, situé à 200m de la Porte de Saint-Cloud

Réf : BFVTR20000327 860 000 €

Bossé & Mona Immobilier, vous propose à la vente ce triplex ( sous garantie décennale) de 81m2 habitables, (73m2 Carrez) avec 2 terrasses de 17m2 et 19m2, refait par architecte, situé à 200m de la Porte de Saint-Cloud.

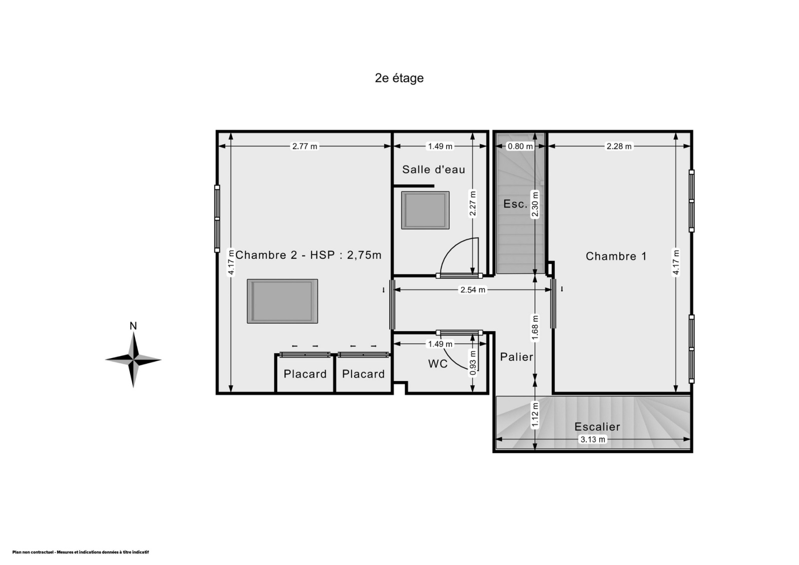
L'accès à l'appartement est situé au 2ème étage de l'immeuble. Il se compose :

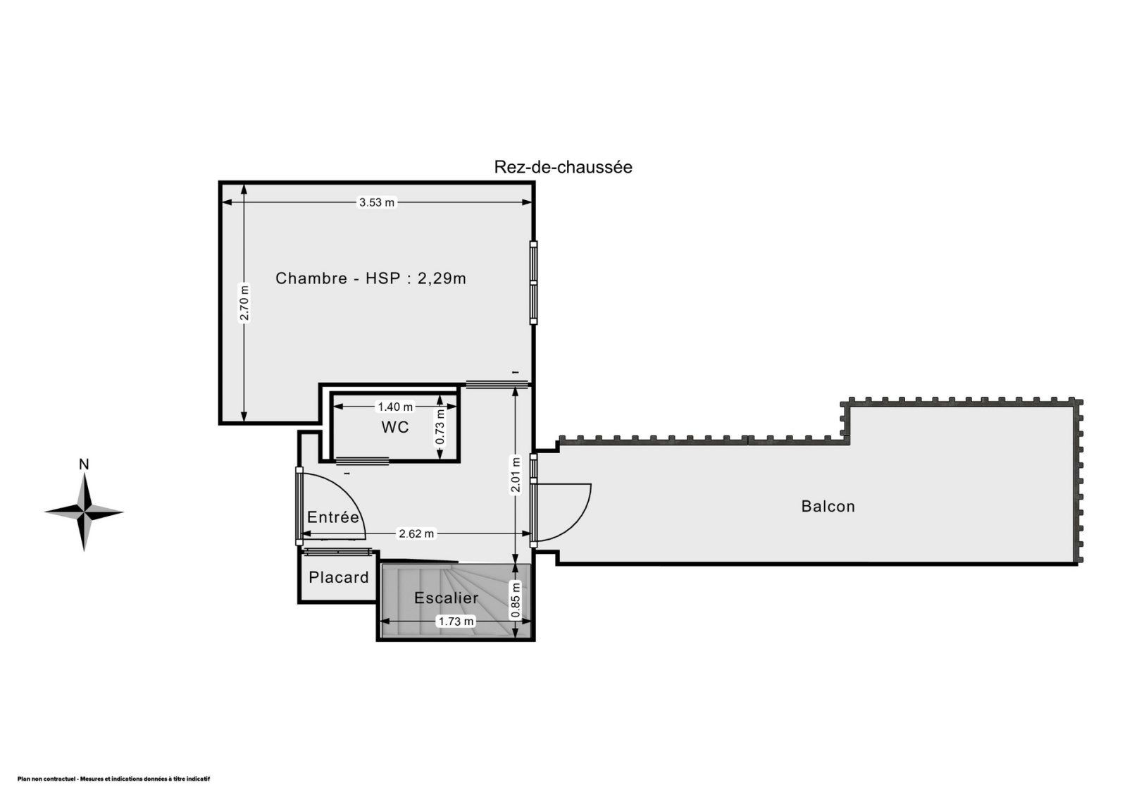
Au 1er niveau : d'une entrée, d'une chambre de 9m2, d'un WC indépendant et d'une terrasse de 17m2.

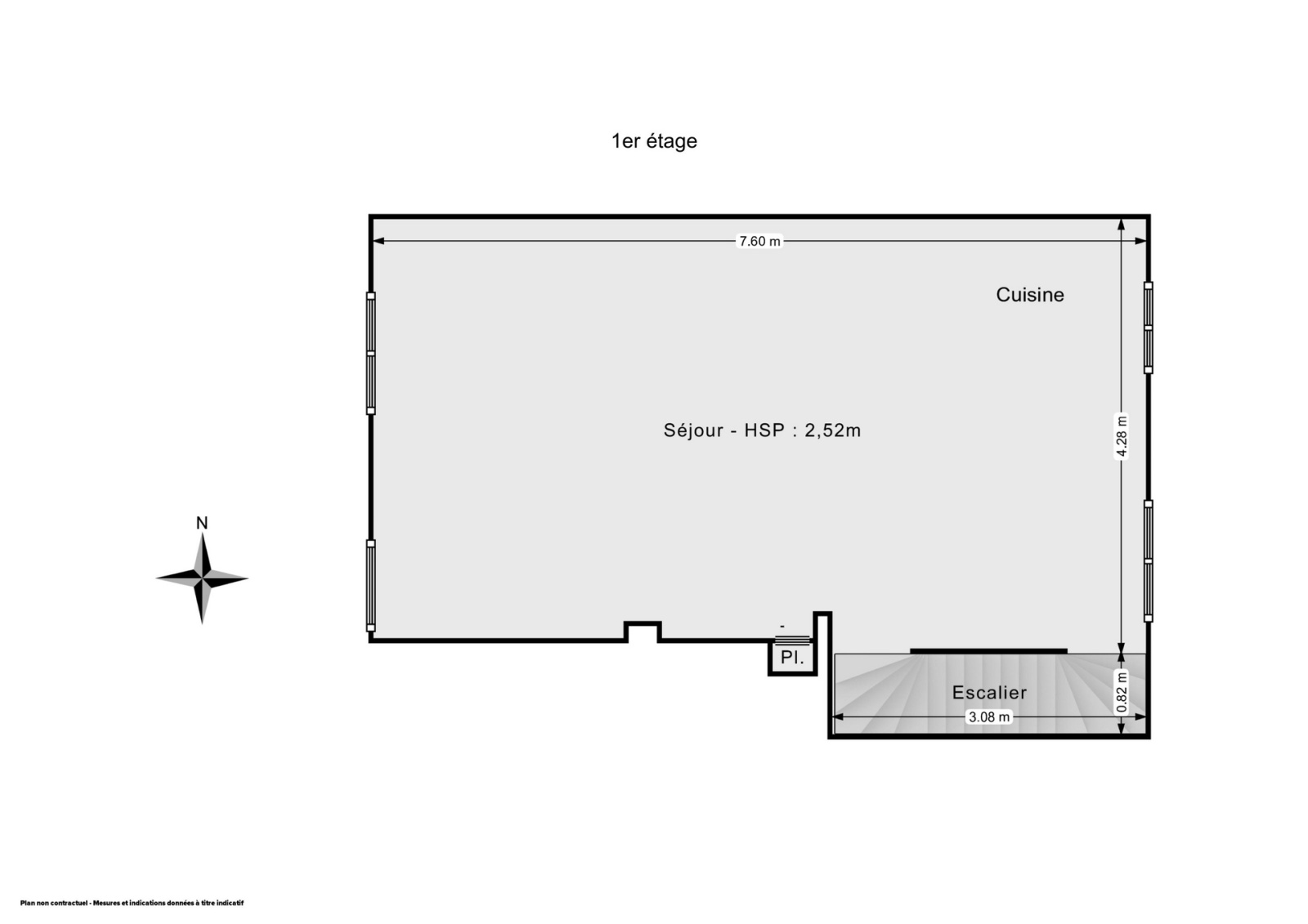
Au 2ème niveau: d'un séjour de 33m2 avec cuisine à installer.

Au 3ème niveau: de 2 chambres de 9m2 et 11m2, d'un WC indépendant et d'une salle d'eau.

Au dernier étage, d'un toit-terrasse de 19m2.

L'appartement bénéficie de fenêtres en double vitrage, de parquet, de nombreux rangements et de 2 caves.

Les charges de copropriété sont de 200 euros / mois et comprenant l'eau froide et l'entretien des parties communes. Le chauffage est inviduel éléctrique. La taxe fonciére est de 500 euros.

Nous sommes à votre disposition si vous souhaitez vendre ou faire estimer un bien immobilier à Paris ou dans l'Ouest parisien.

TRAD_SIROCCO_Caracteristique Valeurs
Code postal 75016
Surface habitable (m²) 81 m²
Surface loi Carrez (m²) 73 m²
Nombre de chambre(s) 3
Nombre de pièces 4
Etage 2
Nombre de niveaux 3
Ascenseur NON
TRAD_SIROCCO_Caracteristique Valeurs
Nb de salle d'eau 1
Cuisine Américaine
Mode de chauffage Electrique
Type de chauffage Radiateur
Format de chauffage Individuel
Terrasse OUI
Cave OUI
Exposition Sud-Ouest
Année de construction 2022
TRAD_SIROCCO_Caracteristique Valeurs
Copropriété OUI
TRAD_SIROCCO_Caracteristique Valeurs
Prix de vente honoraires TTC inclus 860 000 €
Prix de vente honoraires TTC exclus 851 000 €
Honoraires TTC à la charge acquéreur 1,06 %
Charges 200 €
Taxe foncière annuelle 500 €
DPE GES
DPE en cours
  • Commerces et santé
  • Loisirs
  • Ecoles
  • Transports
  • Pratique

Nos outils

Imprimer
Ces biens peuvent aussi vous intéresser
Vendu
Paris (75016)

3 pièces de 76m2 avec balcon situé à 200m du métro Michel-Ange-Auteuil

Vendu
Paris (75015)

3 pièces de 72m2 en parfait état, clair et calme, situé à 200m du...

Nous suivre sur