Découvrir le bien

Paris (75016) 3 pièces de 67m2, clair et calme, situé à 400m du métro Église d'Auteuil

Réf : BFVAP20000484 709 000 €

Bossé & Mona Immobilier, vous propose à la vente cet appartement de 67m2 Carrez, en bon état général, situé rue Degas, à 400m du métro Eglise d'Auteuil ( séctorisé Jean Baptiste Say).

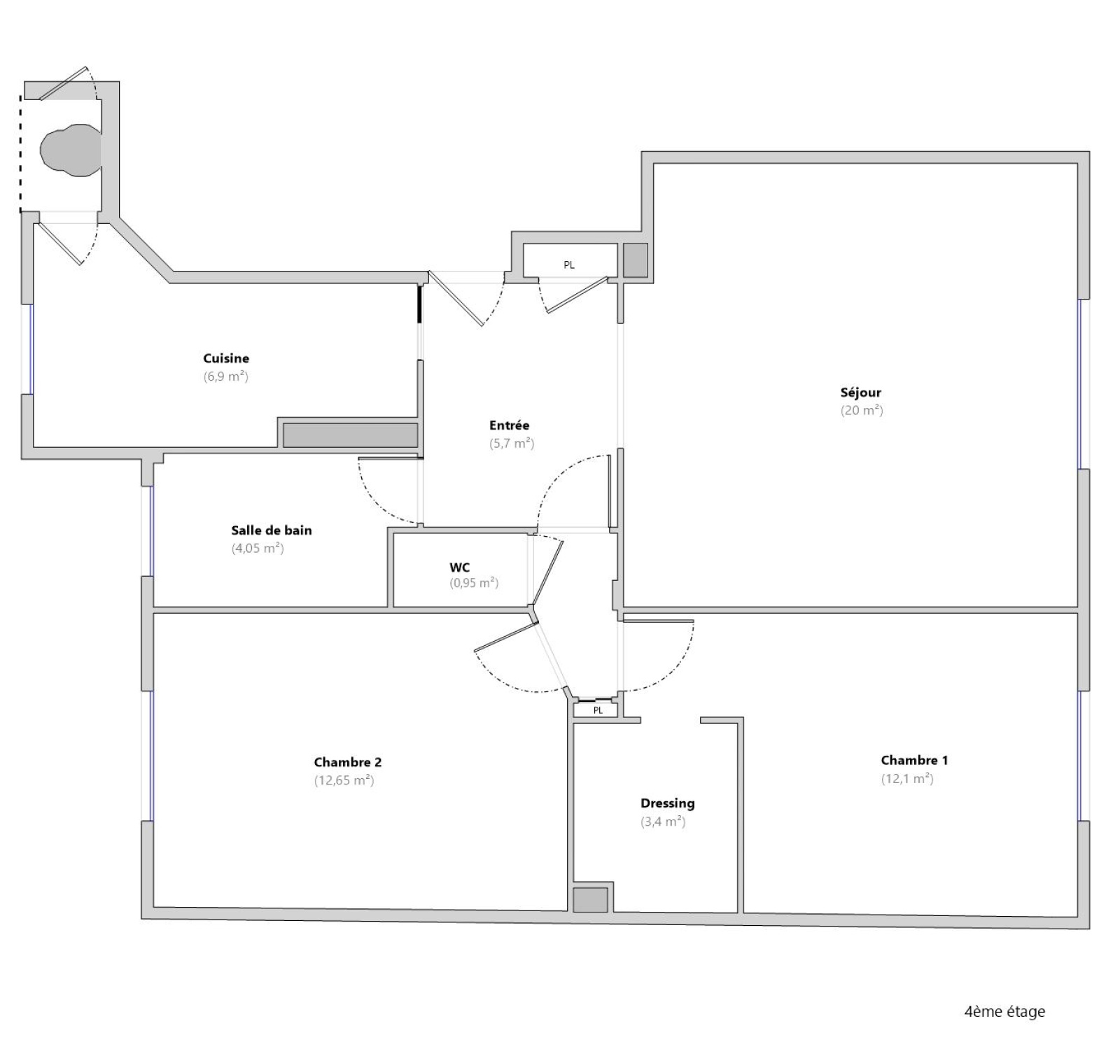
Le bien, clair et calme, est situé au 4ème étage avec ascenseur. Il se compose d'une entrée avec placards, d'un séjour de 20m2 exposé Nord Est, d'une cuisine indépendante entièrement équipée et aménagée de 7m2, de deux chambres de 12m2 et 13m2, d'un dressing, d'une salle de bains de 4m2, d'un WC indépendant et d'une cave de 6m2.

L'appartement dispose de fenêtres en double vitrage, de parquet et d'une hauteur sous plafond de 2.80m.

Les charges, de 215 euros par mois, incluent, l'ascenseur, l'eau froide et l'entretien des parties communes.

Le chauffage est individuel au gaz.

Nous sommes à votre disposition si vous souhaitez vendre ou faire estimer un bien immobilier à Paris ou dans l'Ouest parisien.

TRAD_SIROCCO_Caracteristique Valeurs
Code postal 75016
Surface habitable (m²) 67 m²
Surface loi Carrez (m²) 67 m²
Nombre de chambre(s) 2
Nombre de pièces 3
Etage 4
Ascenseur OUI
TRAD_SIROCCO_Caracteristique Valeurs
Nb de salle de bains 1
Cuisine Séparée
Type de cuisine Equipée
Mode de chauffage Gaz
Type de chauffage Radiateur
Format de chauffage Individuel
Cave OUI
Exposition Nord-Est
Année de construction 1950
TRAD_SIROCCO_Caracteristique Valeurs
Prix de vente honoraires TTC inclus 709 000 €
Prix de vente honoraires TTC exclus 700 000 €
Honoraires TTC à la charge acquéreur 1,29 %
DPE GES
DPE en cours
  • Commerces et santé
  • Loisirs
  • Ecoles
  • Transports
  • Pratique

Nos outils

Imprimer
Ces biens peuvent aussi vous intéresser
Vendu
Paris (75016)

3 pièces de 76m2 avec balcon situé à 200m du métro Michel-Ange-Auteuil

Vendu
Paris (75016)

Appartement de 58m2 en parfait état, dernier étage, à 300m du métro...

Nous suivre sur