Paris (75013)  Appartement de 62m2 avec parking, 7ème étage, rue Bobillot, à 350m du métro Corvisart

Réf : MHVAP30000014 599 000 €

Bossé & Mona immobilier, vous propose à la vente cet appartement de 62m2 (61.52m2 Carrez), situé rue Bobillot, dans un immeuble de 1966, à 350m du métro Corvisart.

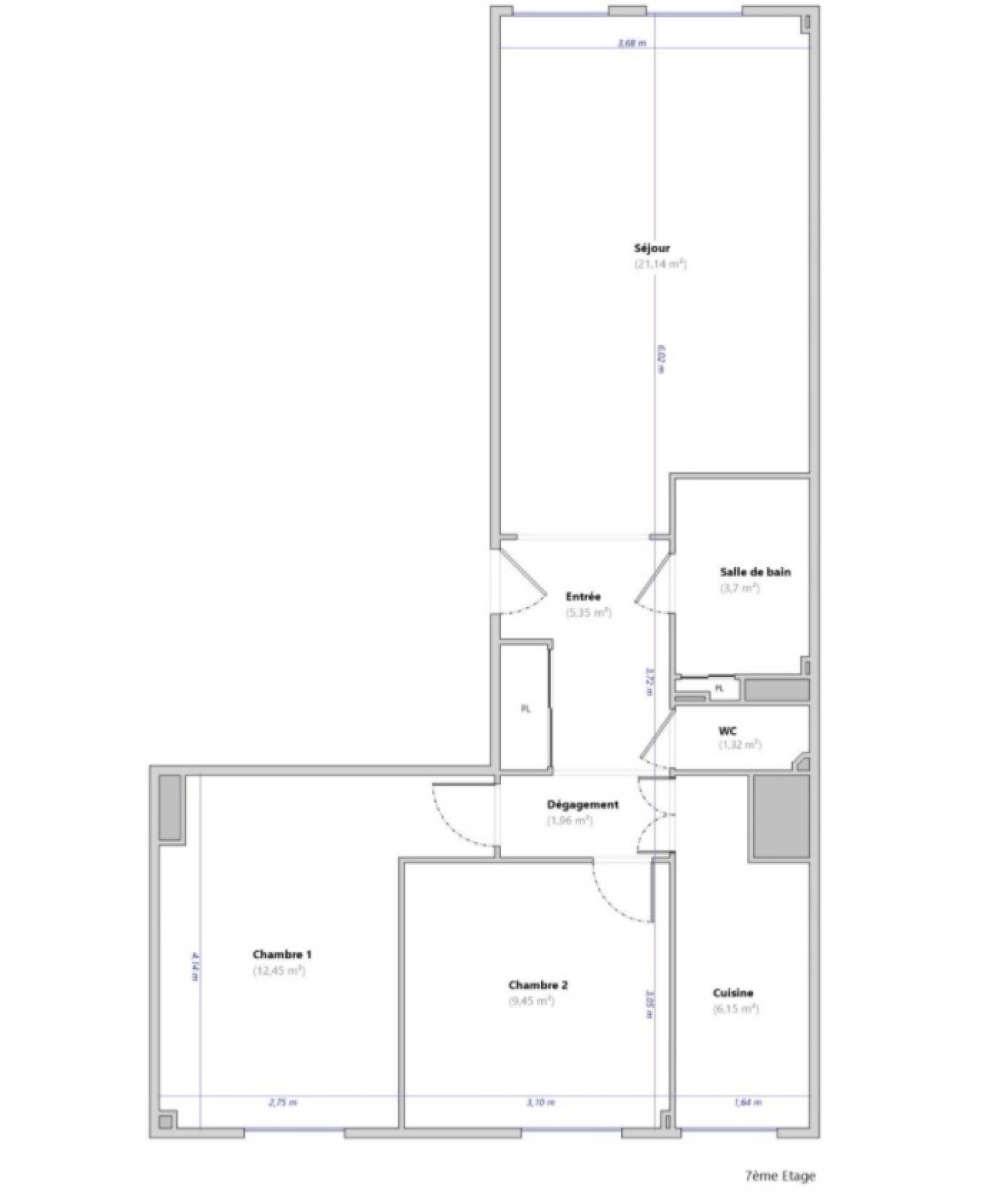
Le bien, au 7éme étage avec ascenseur, en bon état général, calme et traversant (Nord / Sud), se compose d'une entrée, d'un séjour de 21m2, d'une cuisine séparée de 6m2, de deux chambres de 9m2 et 12m2, d'une salle de bains et d'un WC séparé.

Il bénéficie de parquet et de fenêtres en double vitrage dans le séjour.

Une cave est incluse dans la vente, et une place de parking au sous-sol de l'immeuble est proposée, en sus, au prix de 18 000€.

Les charges, de 300€ par mois, incluent notamment l'eau froide, l'eau chaude, le chauffage, l'ascenseur et les services d'un gardien.

TRAD_SIROCCO_Caracteristique Valeurs
Code postal 75013
Surface habitable (m²) 62 m²
Surface loi Carrez (m²) 62 m²
Nombre de chambre(s) 2
Nombre de pièces 3
Etage 7
Ascenseur OUI
TRAD_SIROCCO_Caracteristique Valeurs
Nb de salle de bains 1
Cuisine Séparée
Cave OUI
Exposition Nord-Sud
Année de construction 1966
TRAD_SIROCCO_Caracteristique Valeurs
Prix de vente honoraires TTC inclus 599 000 €
Charges 300 €
DPE GES
DPE ANCIENNE VERSION
  • Commerces et santé
  • Loisirs
  • Ecoles
  • Transports
  • Pratique

Nos outils

Imprimer
Ces biens peuvent aussi vous intéresser
Vendu
Paris (75016)

Appartement 55m2, balcon 8m2, quartier La Muette, à 50m du RER...

Vendu
Paris (75017)

3 pièces de 57m2 clair et calme situé à 150m du métro Brochant

Nous suivre sur