Découvrir le bien

Paris (75013) Appartement 35m2, très bon état, à 300m de la Bibliothèque François Mitterrand

Réf : MHVAP30000314 329 000 €

Bossé & Mona Immobilier, vous propose à la vente cet appartement de 35m2, dans un immeuble ancien, rue du Dessous des Berges, à 300m de la Bibliothèque François Miterrand.

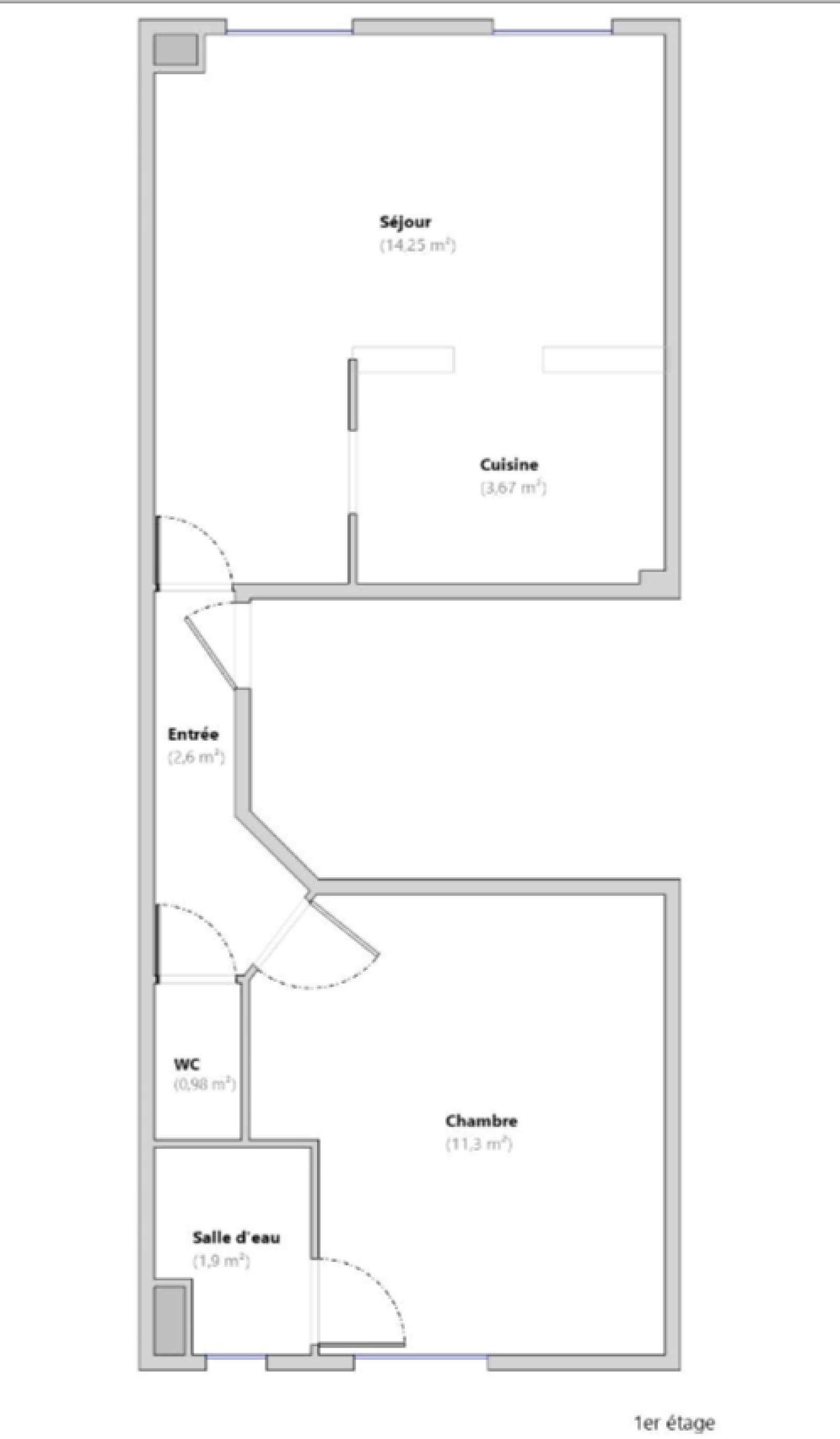
Le bien, unique appartement du palier, au 1er étage sans ascenseur d'une petite copropriété, se compose d'une cuisine ouverte sur le séjour de 18m2 exposé Nord-Est, d'une chambre sur cour de 11m2 exposée Sud-Ouest, d'une salle de bain et d'un WC indépendant.

L'appartement bénéficie de fenêtres en double vitrage et d'une hauteur sous plafond de 3 mètres.

Le chauffage et l'eau chaude sont individuels électriques.

Les charges, de 165 euros par mois, incluent l'eau froide et l'entretien des parties communes.

Nous sommes à votre disposition si vous souhaitez vendre ou faire estimer votre bien à Paris ou dans l'Ouest parisien.

TRAD_SIROCCO_Caracteristique Valeurs
Code postal 75013
Surface habitable (m²) 35,30 m²
Surface loi Carrez (m²) 34,70 m²
Nombre de chambre(s) 1
Nombre de pièces 2
Etage 1
Ascenseur NON
TRAD_SIROCCO_Caracteristique Valeurs
Nb de salle de bains 1
Cuisine Américaine
Type de cuisine Equipée
Mode de chauffage Electrique
Type de chauffage Autre
Format de chauffage Individuel
Balcon NON
Terrasse NON
Cave NON
Exposition Nord-Est
Année de construction 1900
TRAD_SIROCCO_Caracteristique Valeurs
Copropriété OUI
nombre de lots 10
TRAD_SIROCCO_Caracteristique Valeurs
Prix de vente honoraires TTC inclus 329 000 €
Prix de vente honoraires TTC exclus 320 000 €
Honoraires TTC à la charge acquéreur 2,81 %
Charges 165 €
DPE GES
DPE en cours
  • Commerces et santé
  • Loisirs
  • Ecoles
  • Transports
  • Pratique

Nos outils

Imprimer
Ces biens peuvent aussi vous intéresser
Vendu
Paris (75010)

Appartement 33m2, dernier étage, Quai de Jemmapes, sur le Canal...

Vendu
Paris (75019)

Appartement 37m2 avec balcon, rue Burnouf

Nous suivre sur